Renoveringen er i fuld gang på Rugårdsvej 10C i Odense C. Ejendommen, som i flere år har fungeret som erhvervslejemål bliver lavet om til en eksklusiv lejlighed i to plan på 180 kvm. Ejendommen ligger centralt placeret i Odense – tæt på banegården, den nye letbane, havnen, city-miljøet med restauranter og butikker samt flere uddannelsessteder. Dertil ligger Rema 1000 blot et stenkast fra ejendommen.
Renoveringen forventes at stå færdig i starten af 2021.
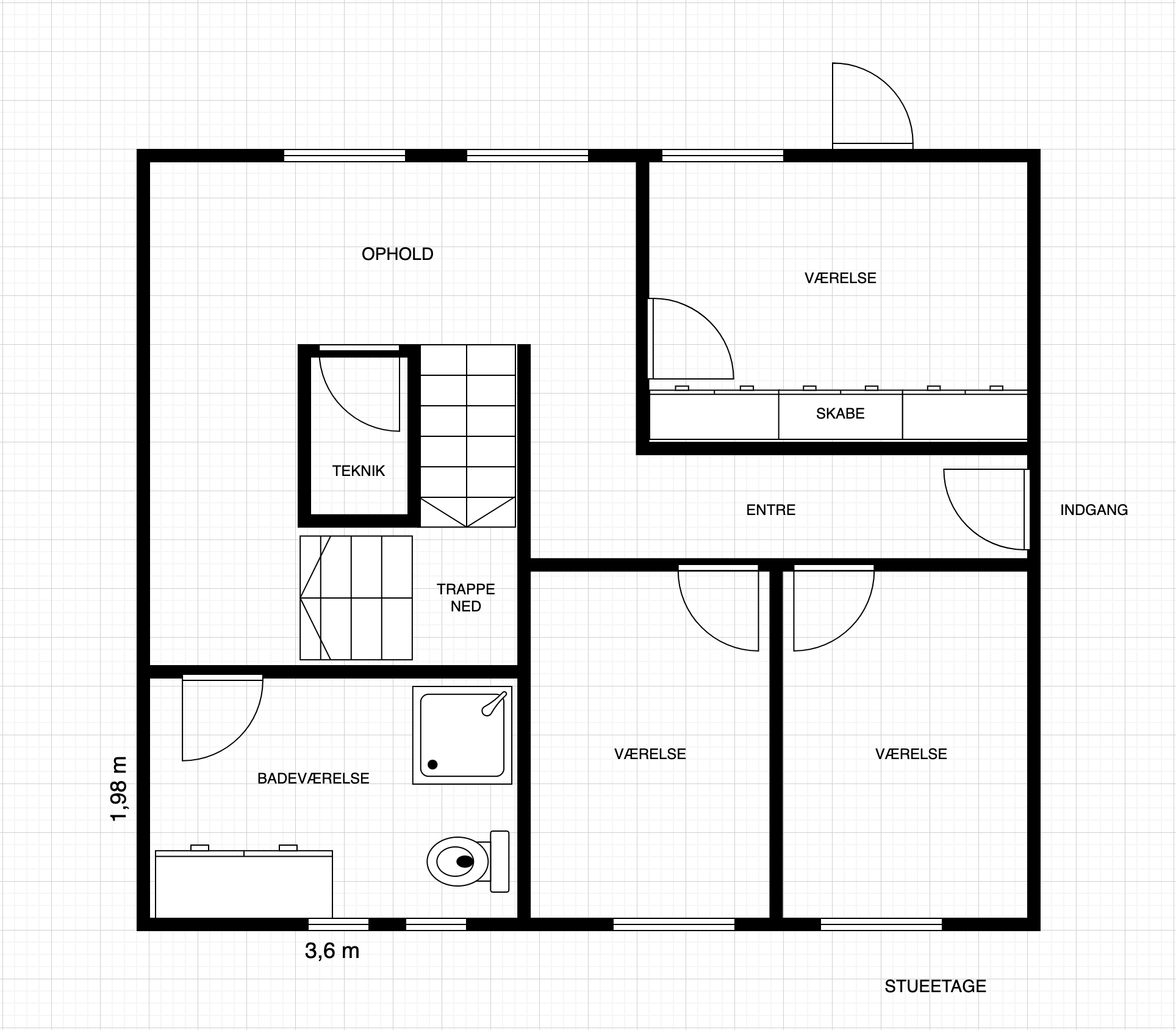
Stue-etagen kommer til at bestå af en entré/fordelingsgang som leder ind til tre store værelser, hvoraf det største har faste skabe langs hele væggen. Dertil et mindre opholdsrum med et fantastik lysindfald og med udkig ud til ejendommens private gårdhave og terrasse. På denne etage er der desuden et flot og lyst badeværelse.
Under-etagen kommer til at bestå af det store opholdsrum i forbindelse med køkken/alrummet. Det store opholdsrum har et fantastisk lysindfald fra de store vinduer langs den ene væg. Her er der desuden udgang til den private gårdhave/terrasse. Det er også på denne etage, man finder det sidste værelse. Fra køkkenet er der desuden adgang til endnu et toilet som også fungere som lejlighedens bryggers. Her er finder man både vaskemaskine og tørretumbler samt adgang til teknikrum.










